- الصفحة الرئيسية
- المنتجات
- أدراج وخزائن المختبرات
- خزانة معلقة على الجدار
خزانة معلقة على الجدار - وحدات تخزين علوية
Laboratory Wall Cabinet
-
- الموديل
- DG750
-
- المواصفات القياسية
-
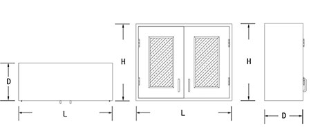
- القياس:
570 مم (L) ×300 مم (D) × 600 مم (H) - المواد:
جسم الخزانة مصنوع من لوح الفولاذ المقاوم للصدأ سمك 1.0 مم، ومطلي بمسحوق الإيبوكسي؛
مقابض السحب والمفصلات من الفولاذ المقاوم للصدأ 304، تحتوي على رف واحد. - الطلاء النهائي:
أبيض .
- القياس:
-
- المواصفات الاختيارية
-
- القياس:
750 مم أو 900 مم (L). - المواد:
أبواب الخزانة من لوح الفولاذ الصلبة، بينما جسم الكابينة من لوح الفولاذ سمك 1.2 مم، لوح فولاذ مقاوم للصدأ، لوح PP أو لوحة الميلامين. - ألوان الطلاء مخصصة حسب الطلب.
- القياس:
منتجات أخرى










