- الصفحة الرئيسية
- المنتجات
- أرفف المختبر
- نظام أرفف مختبرات مزدوجة
نظام أرفف مختبرات مزدوجة
Laboratory Shelving System (Double-Sided)
-
- الموديل
- DSJ700
-
- المواصفات القياسية
-
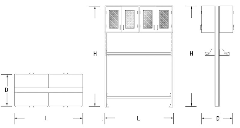
- القياس:
1500 مم (L) ×700 مم (D) × 2250 مم (H) - المواد:
الهيكل من لوح الفولاذ المقاوم للصدأ ذو الجودة العالية سمك 1.5 مم، جسم الخزانة المعلق (خزانة علوية) مصنزع من لوع الفولاذ ذو الجودة العالية بسمك 1.0 مم؛ مقابض السحب على شكل C والمفصلات من الفولاذ المقاوم للصدأ SS304؛ الأرفف من الزجاج المقوى. - الطلاء النهائي: أبيض.
- لا تشتمل على حزانة قاعدية (خزانة سفلية).
- القياس:
-
- المواصفات الاختيارية
-
- هيكل الأدراج يمكن أن يكون الفولاذ المقاوم للصدأ.
- جسم الخزانة المعلق (خزانة علوية) مصنعو من الفولاذ المقاوم للصدأ، لوح PP أو لوح الميلامين.
- الباب الأمامي للخزانة العلوية المعلقة مصنوع من الفولاذ الصلب.
- المقابض الخطية مشكلة بالصب في قوالب.
- ألوان الطلاء مخصصة حسب الطلب.
- متوفر موزع الكهرباء (SJC1330)، يمكن تخصيص عدد المقابس الكهربائية حسب الطلب.
منتجات أخرى










